Tag: ub steel
-
UB 920x420x1269
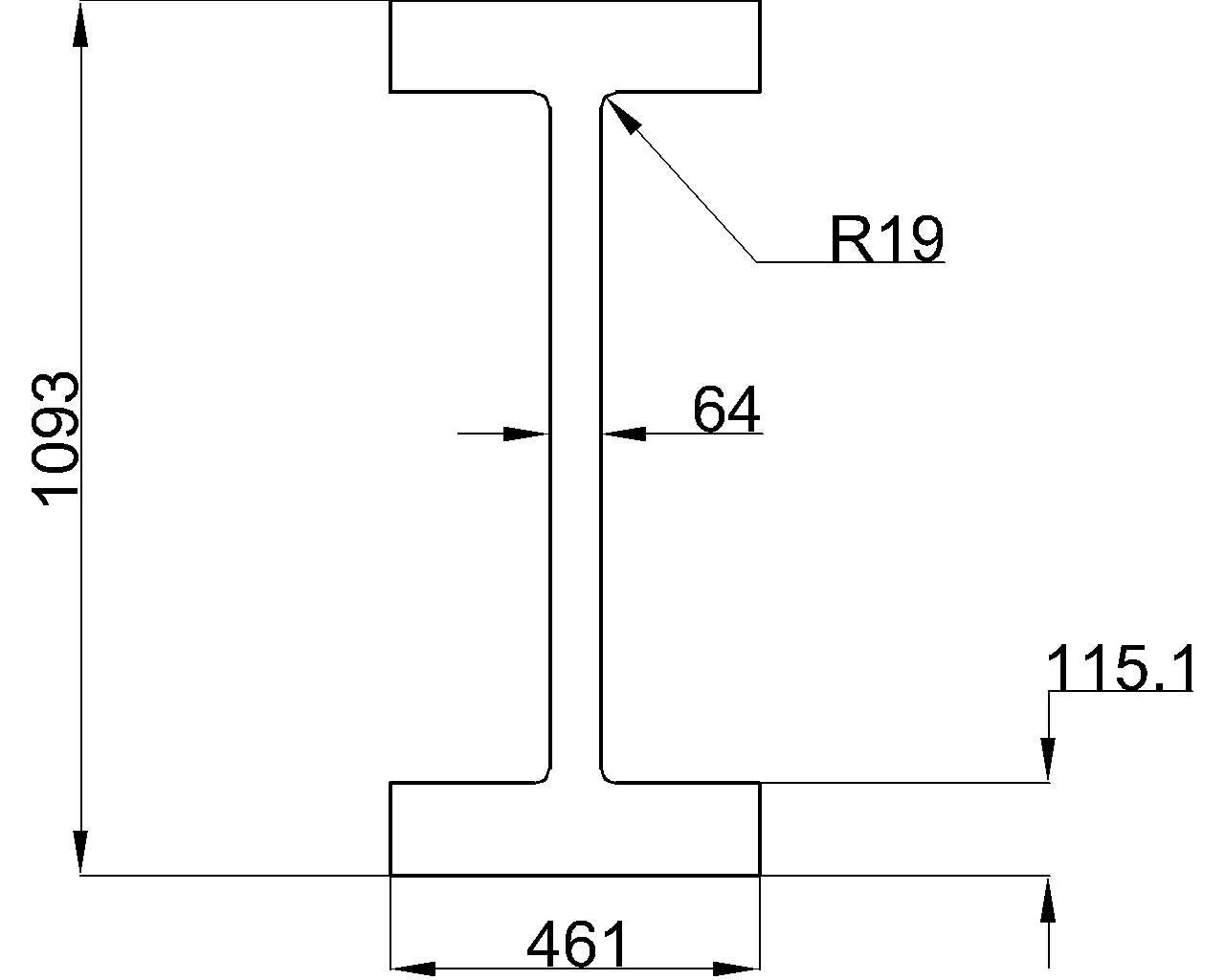
UB 920x420x1269 Universal Beams refer to : EN 10365:2017 a European standard that defines the dimensions, tolerances, and sectional properties for hot-rolled steel channels, I-beams, and H-beams used in construction and engineering. It ensures uniformity and compatibility across European structural steel products. Dimension : 1093x461x64x115.1 Depth : 1093 mm Width : 461 mm Web Thickness…
Written by
-
UB 920x420x1194
UB 920x420x1194 Universal Beams refer to : EN 10365:2017 a European standard that defines the dimensions, tolerances, and sectional properties for hot-rolled steel channels, I-beams, and H-beams used in construction and engineering. It ensures uniformity and compatibility across European structural steel products. Dimension : 1081x457x60.5×109 Depth : 1081 mm Width : 457 mm Web Thickness…
Written by
-
UB 920x420x1077
UB 920x420x1077 Universal Beams refer to : EN 10365:2017 a European standard that defines the dimensions, tolerances, and sectional properties for hot-rolled steel channels, I-beams, and H-beams used in construction and engineering. It ensures uniformity and compatibility across European structural steel products. Dimension : 1061x451x55x99.1 Depth : 1061 mm Width : 451 mm Web Thickness…
Written by
-
UB 920x420x970
UB 920x420x970 Universal Beams refer to : EN 10365:2017 a European standard that defines the dimensions, tolerances, and sectional properties for hot-rolled steel channels, I-beams, and H-beams used in construction and engineering. It ensures uniformity and compatibility across European structural steel products. Dimension : 1043x446x50x89.9 Depth : 1043 mm Width : 446 mm Web Thickness…
Written by
-
UB 920x420x787
UB 920x420x787 Universal Beams refer to : EN 10365:2017 a European standard that defines the dimensions, tolerances, and sectional properties for hot-rolled steel channels, I-beams, and H-beams used in construction and engineering. It ensures uniformity and compatibility across European structural steel products. Dimension : 1011x437x40.9×73.9 Depth : 1011 mm Width : 437 mm Web Thickness…
Written by
-
UB 920x420x725
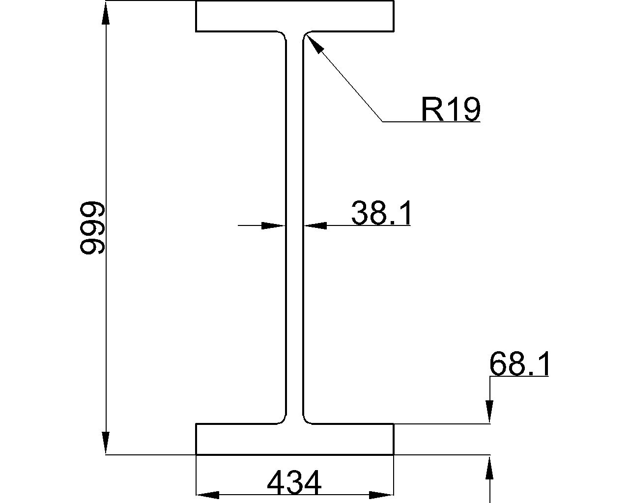
UB 920x420x725 Universal Beams refer to : EN 10365:2017 a European standard that defines the dimensions, tolerances, and sectional properties for hot-rolled steel channels, I-beams, and H-beams used in construction and engineering. It ensures uniformity and compatibility across European structural steel products. Dimension : 999x434x38.1×68.1 Depth : 999 mm Width : 434 mm Web Thickness…
Written by
-
UB 920x420x656
UB 920x420x656 Universal Beams refer to : EN 10365:2017 a European standard that defines the dimensions, tolerances, and sectional properties for hot-rolled steel channels, I-beams, and H-beams used in construction and engineering. It ensures uniformity and compatibility across European structural steel products. Dimension : 987x431x34.5×62 Depth : 987 mm Width : 431 mm Web Thickness…
Written by
-
UB 920x420x588
UB 920x420x588 Universal Beams refer to : EN 10365:2017 a European standard that defines the dimensions, tolerances, and sectional properties for hot-rolled steel channels, I-beams, and H-beams used in construction and engineering. It ensures uniformity and compatibility across European structural steel products. Dimension : 975x427x31x55.9 Depth : 975 mm Width : 427 mm Web Thickness…
Written by
-
UB 920x420x537
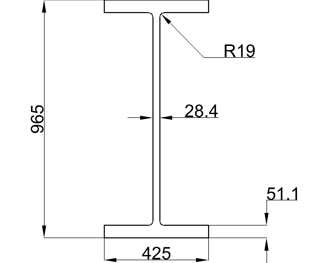
UB 920x420x537 Universal Beams refer to : EN 10365:2017 a European standard that defines the dimensions, tolerances, and sectional properties for hot-rolled steel channels, I-beams, and H-beams used in construction and engineering. It ensures uniformity and compatibility across European structural steel products. Dimension : 965x425x28.4×51.1 Depth : 965 mm Width : 425 mm Web Thickness…
Written by
-
UB 920x420x491
UB 920x420x491 Universal Beams refer to : EN 10365:2017 a European standard that defines the dimensions, tolerances, and sectional properties for hot-rolled steel channels, I-beams, and H-beams used in construction and engineering. It ensures uniformity and compatibility across European structural steel products. Dimension : 957x422x25.9×47 Depth : 957 mm Width : 422 mm Web Thickness…
Written by
-
UB 920x420x449
UB 920x420x449 Universal Beams refer to : EN 10365:2017 a European standard that defines the dimensions, tolerances, and sectional properties for hot-rolled steel channels, I-beams, and H-beams used in construction and engineering. It ensures uniformity and compatibility across European structural steel products. Dimension : 948x423x24x42.7 Depth : 948 mm Width : 423 mm Web Thickness…
Written by
-
UB 920x420x420
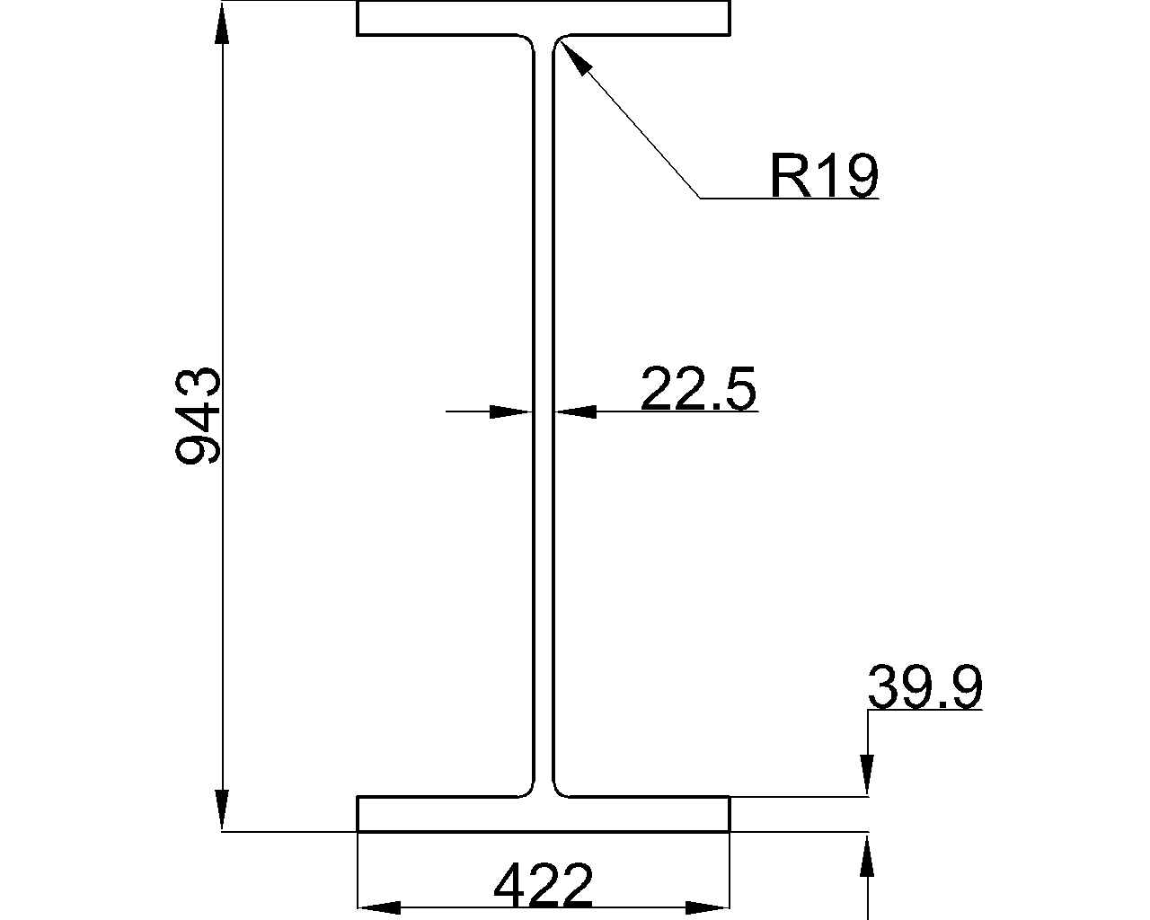
UB 920x420x420 Universal Beams refer to : EN 10365:2017 a European standard that defines the dimensions, tolerances, and sectional properties for hot-rolled steel channels, I-beams, and H-beams used in construction and engineering. It ensures uniformity and compatibility across European structural steel products. Dimension : 943x422x22.5×39.9 Depth : 943 mm Width : 422 mm Web Thickness…
Written by











