Tag: pfc channel
-
PFC 150x90x24
PFC 150x90x24 Parallel Flange Channels refer to : EN 10365:2017 a European standard that defines the dimensions, tolerances, and sectional properties for hot-rolled steel channels, I-beams, and H-beams used in construction and engineering. It ensures uniformity and compatibility across European structural steel products. Dimension : 150x90x6.5×12 Depth : 150 mm Width : 90 mm Web…
Written by
-
PFC 150x75x18
PFC 150x75x18 Parallel Flange Channels refer to : EN 10365:2017 a European standard that defines the dimensions, tolerances, and sectional properties for hot-rolled steel channels, I-beams, and H-beams used in construction and engineering. It ensures uniformity and compatibility across European structural steel products. Dimension : 150x75x5.5×10 Depth : 150 mm Width : 75 mm Web…
Written by
-
PFC 125x65x15
PFC 125x65x15 Parallel Flange Channels refer to : EN 10365:2017 a European standard that defines the dimensions, tolerances, and sectional properties for hot-rolled steel channels, I-beams, and H-beams used in construction and engineering. It ensures uniformity and compatibility across European structural steel products. Dimension : 125x65x5.5×9.5 Depth : 125 mm Width : 65 mm Web…
Written by
-
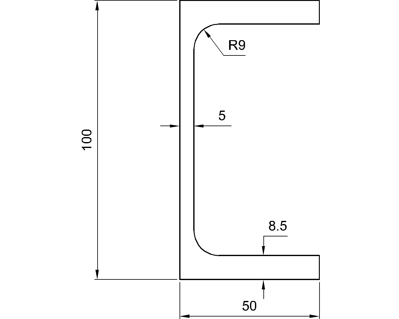
PFC 100x50x10
PFC 100x50x10 Parallel Flange Channels refer to : EN 10365:2017 a European standard that defines the dimensions, tolerances, and sectional properties for hot-rolled steel channels, I-beams, and H-beams used in construction and engineering. It ensures uniformity and compatibility across European structural steel products. Dimension : 100x50x5x8.5 Depth : 100 mm Width : 50 mm Web…
Written by



